Secure Investment in growing town

Web Ref#8555

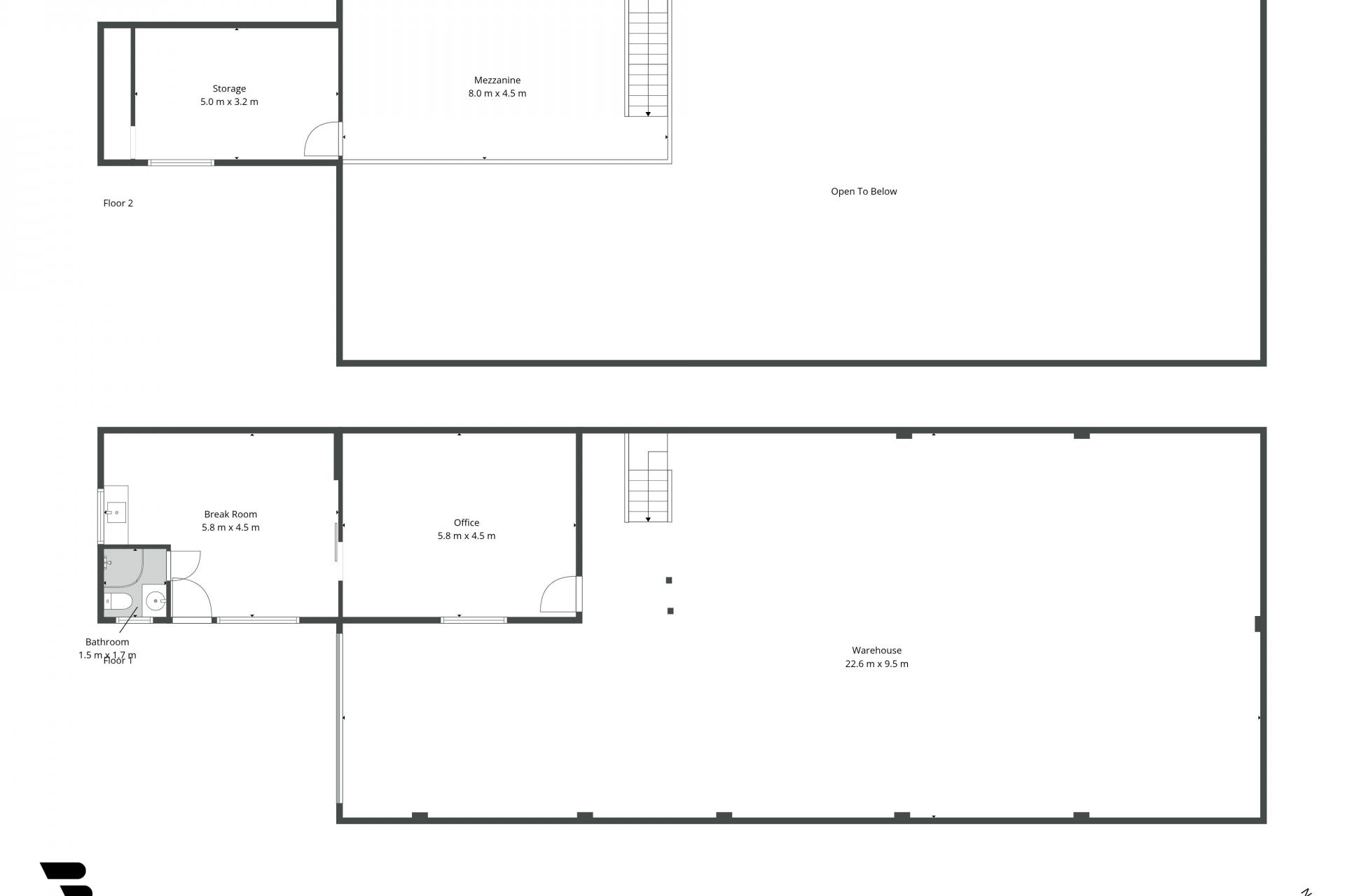
On offer is a commercial building with blue chip tenant in the heart of Whangamata's industrial precinct. A long lease to NZ Post secures your investment and is used as the distribution centre for the area. High stud and roller doors provide vehicle access for secure storage. An office on the ground floor is complemented by bathroom facilities and kitchen area including shower facilities. The mezzanine provides extra office or storage space.

Construction is block with steel trusses and iron roof. Ideal for industrial use the lease is in the middle of a three year term with rights of renewal through to 2033.

Location is fantastic and with steady population growth, increased freight is a great place to be investing.

- 350sqm (more or less) of land
- 320sqm (more or less) building
- Leased to New Zealand Post
- Final lease expiry 2033
- EQC rating “B”

Call today for a full information pack.

Auction 328 Ocean Road, Whangamata 1pm 6 December 2025 (unless sold prior)

William MacLean
William MacLean
Sales Consultant
Tile 1 Image

Looking to Sell?

Get a FREE appraisal from the company that has been selling Whangamata since 1955.

Request Now

 

WRE 2024 Ltd

Meet Our Team

Meet our experienced salespeople who can help you with all of your real estate needs.

View the team

 

Tile 3 Image

Property Updates

Register to receive our weekly property report, this is a great way of keeping you informed of the current market.

Register Now

 

Tile 4 Image

Rentals

At Whangamata Real Estate we have a dedicated Property Management Team whose knowledge and experience will help you to reduce risk and manage your rental investment efficiently - saving you time and money. 

Find out more