Web Ref#8575
In the heart of Whangamata, this lock-up-and-leave apartment puts cafes, shops, and the beach right at your doorstep. A renovated kitchen, north-facing balcony with headland views, and resort-style facilities make it an ideal permanent home or holiday escape.
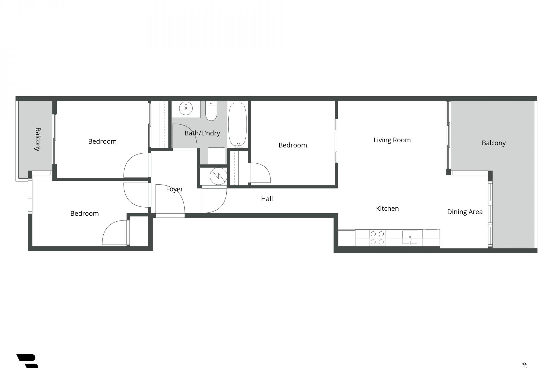
• Renovated kitchen with open-plan living and dining
• Three bedrooms plus bathroom with laundry facilities
• Prime central location - walk to cafes, shops, harbour, and beach
• North-facing balcony with views of the headland
• Heated swimming pool and spa
• Two car parks, storage locker, and bike parking
• Onsite manager providing secure and well-run facilities
• Suitable for permanent or holiday living
• Generous chattels included
Call Chris or Katie Speedy today to arrange your viewing.
![]() |
Looking to Sell? |
|
Get a FREE appraisal from the company that has been selling Whangamata since 1955. |
Request Now |

![]() |
Property Updates |
|
Register to receive our weekly property report, this is a great way of keeping you informed of the current market. |
| Register Now |
![]() |
Rentals |
|
At Whangamata Real Estate we have a dedicated Property Management Team whose knowledge and experience will help you to reduce risk and manage your rental investment efficiently - saving you time and money. |
| Find out more |