Web Ref#8572
Enjoy the convenience of a Given Ave location. So handy to Surf Beach and Estuary. A popular choice often requested. Quiet yet close to the action.
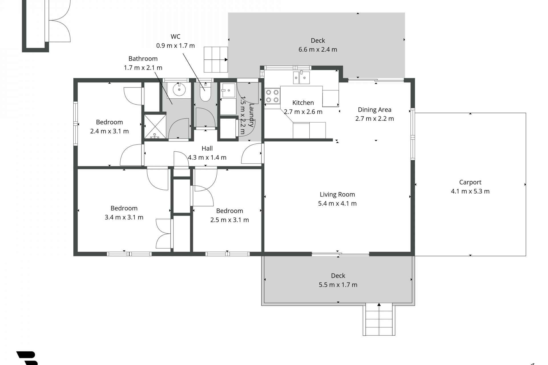
Suitable as a holiday home or rental, permanent abode or transition to becoming permanent, this single level three bedroom home will have wide market appeal with its low maintenance construction and grounds. Dual decks and great connection to the outdoors, easy care gardens and lawn area.
401sqm Freehold Title with an easy contour, provides level off street parking and room for tents and boats. Partially fenced, practical and well presented.
The sunny aspect appeals and makes this a great all rounder.
Features include:
- 401sqm Freehold Title
- Three bedroom, single level dwelling with dual decks
- Level grounds with easy access and off street parking
- Carport and handy garden shed for extra storage
- Low maintenance construction, lawns and gardens
- Appeals as a holiday home or rental option
- Equally suitable as a permanent home or retirement option
- Sunny aspect and popular location
Call Sharon Laurenson on 0276623164 for Info Pack or an opportunity to view.
![]() |
Looking to Sell? |
|
Get a FREE appraisal from the company that has been selling Whangamata since 1955. |
Request Now |

![]() |
Property Updates |
|
Register to receive our weekly property report, this is a great way of keeping you informed of the current market. |
| Register Now |
![]() |
Rentals |
|
At Whangamata Real Estate we have a dedicated Property Management Team whose knowledge and experience will help you to reduce risk and manage your rental investment efficiently - saving you time and money. |
| Find out more |