Web Ref#8623
Discover the character of this family Holiday Home as you step inside. Retro charm greets you and creates an instant relaxed holiday mood. A treelined rear yard and spacious lawn beckon. Let the fun begin.
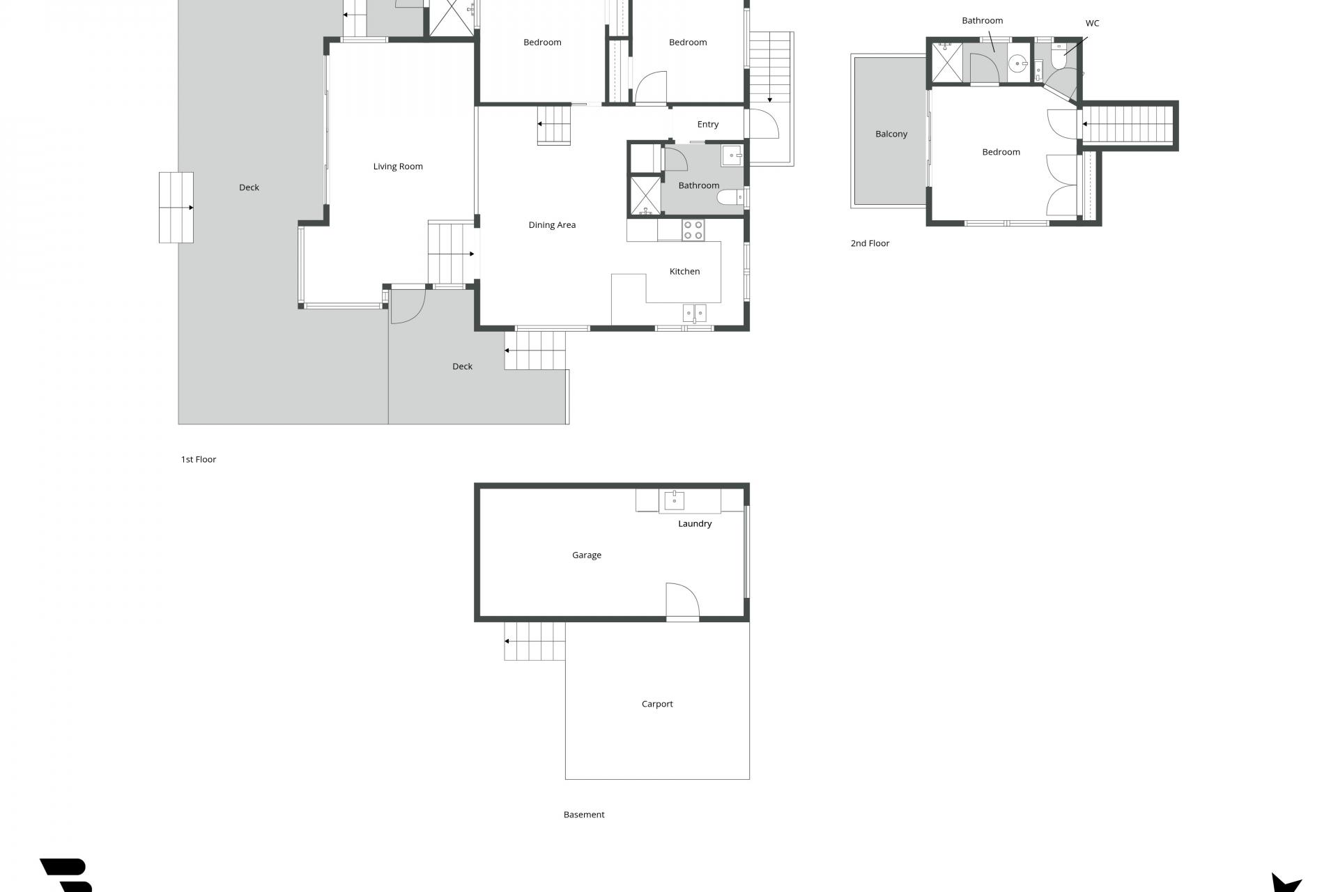
Three double bedrooms, upper level primary bedroom with ensuite and access to private balcony. On ground floor, open plan living spills on to an expansive north / east facing deck, linking indoors to outdoors.
The basement garage / workshop and laundry provide practical spaces for work or play with ample storage for kayaks, beach toys and bikes.
Located in popular Rangi Ave within proximity to the Beach and Estuary, swimming, kayaking and leisurely walks are only moments away.
Well fenced and gated with good level off street parking and carport. Established fruit trees including Avo, Lemon and Feijoa.
Features include:
-Spacious 588sqm Freehold Title
-Located in popular Rangi Ave close to beach access
-Three double bedrooms (master with ensuite and private balcony)
-Open plan living well connected to outdoors
-Expansive north / east facing deck and lawn
-Basement garage / workshop and ample storage for bikes and kayaks
-Carport and off street parking
-Mature shade and fruit trees including Avo, Lemon and Feijoa
-Handy to swimming, kayaking and leisurely walks
-A character Holiday Home or Permanent abode
For sale by Deadline - 3.00pm 30 April 2026 (unless sold prior).
![]() |
Looking to Sell? |
|
Get a FREE appraisal from the company that has been selling Whangamata since 1955. |
Request Now |

![]() |
Property Updates |
|
Register to receive our weekly property report, this is a great way of keeping you informed of the current market. |
| Register Now |
![]() |
Rentals |
|
At Whangamata Real Estate we have a dedicated Property Management Team whose knowledge and experience will help you to reduce risk and manage your rental investment efficiently - saving you time and money. |
| Find out more |